| 建物種別 | マンション |
|---|---|
| 改修規模 | 全面リフォーム |
| 築年数 | 築26年 |
| 施工期間 | 約60日 |
| 地域 | 千葉県 |
| テーマ | 自然素材、明るい部屋、広々、その他 |
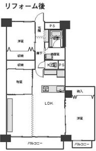
和室は残したいというご夫婦のために、和室を造りました。
子供や孫が泊まりにくる時の寝室になりますし、
普段はリビングの一部としてお使いいただけます。
夜の和室。他の部屋の建具と合わせて、造作障子を塗装しました。
和室の明かりが行燈のような温かさを演出します。
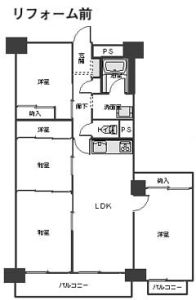
築30年近いマンションにお住まいのご夫婦。
ご主人の定年とお子様の独立を機に、郷里に帰ることもお考えでしたが、偶然立ち寄られた弊社の現場見学会で、「リフォームで新築同様になる」ことを実感され、リフォームを決断されました。
転勤続きだったご主人。これからは、奥様と二人で快適な住まいでゆったりした生活を楽しまれることでしょう。
