PanasonicリフォームClub
TOP TOPリフォーム事例検索詳細

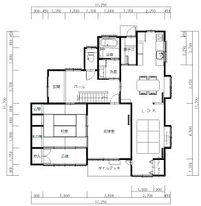
愛知県 K様邸

5か所で計2坪の増築で広々空間&たっぷり収納! ~孫たちの集う家へ~

お店の情報・お問い合わせ  このお店の他の事例を見る
データ
築年数 築33年
施工期間 約113日
地域 愛知県
家族構成 1世帯2人
全国の「Panasonic リフォーム Club」のお店をさがす
リフォームポイント

建物・設備共に少しずつ傷みが出てきたことと、生活スタイルが大きく変わったことで、リフォームをお考えになられました。
使わない和室を有効利用し、孫たちが遊びに来た時に、みんなで楽しく過ごせる広くて明るいLDKをご提案。
暗く狭かった水周り空間を大幅に変更し、使い勝手の良いお住まいにリフォームしました。

お客様の声
今後もっと高齢になっても、ずっときれいに、そして楽に使い続けられるリフォームを提案してくれました。実際に今まで使っていたものと比べると、使いやすさ掃除のしやすさに驚いています。
LDKも広く明るくなり、また、ちょっとしたものをすぐそばに収納できるようになったのでスッキリ片付き、お花などを飾るのもますます楽しくなりました。
ビフォーアフター
ビフォー

暗く狭いキッチン

アフター

出窓下を増築し、奥行きを確保。
収納場所も十分に確保でき、ホワイトの扉で北側キッチンでも明るくスッキリ。キッチン部のエンドパネルはリビングから手元が
隠れる高さにしたのもポイントです。

ビフォー

使わなくなった南側の和室

アフター

ご夫婦が過ごしていた光の入らなかった暗いダイニングが、約21帖の明るいLDK空間に大変身。

ビフォー

暗く収納の少ないリビングダイニング

アフター

出窓下の少しのスペースを増築することでたっぷり収納を確保。
リビング・ダイニングの細々としたものをしまっておくのに
ちょうどいいと大好評!

ビフォー

使わない和室を有効利用し、明るく広いLDKに変更

アフター

陽当たりはよいが使っていない和室を1坪増築しDKとつなげて明るく広いLDKに。

このリフォームで採用したパナソニック商品
施工店情報
パナソニックリフォームクラブ
シンセイ建設株式会社
(旧:リファインおおぶ)

〒474-0061
住所:愛知県大府市共和町5-47
電話:0562-44-7055 FAX:0562-46-5293

■運営会社名 シンセイ建設株式会社
■建設業 愛知県知事許可(特-7)第43294号
■建築士事務所 一級建築士事務所:愛知県知事登録(い-4)第4881号

このお店の情報・事例を見る
シンセイ建設株式会社(旧:リファインおおぶ)のリフォーム事例一覧
このお店の他の事例を見る
ページの先頭へ