PanasonicリフォームClub
TOP TOPリフォーム事例検索詳細

滋賀県 M様邸

ライフスタイルを楽しむ
BARのようなこだわりの家

お店の情報・お問い合わせ  このお店の他の事例を見る
データ
建物種別 マンション
改修規模 全面リフォーム
築年数 築38年
施工期間 約45日
地域 滋賀県
家族構成 1人
テーマ 広々
全国の「Panasonic リフォーム Club」のお店をさがす
リフォームポイント

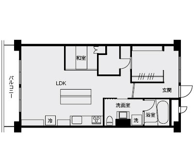
インテリアへのこだわりがとても強いM様。ありふれた間取りやインテリアでは満足できないと中古マンションをスケルトン状態からリフォームすることに。キッチンは、BARのような雰囲気を演出するためモルタル仕上げのカウンター。玄関には、帰ってすぐ着替えられる大容量のウォークインクローゼットを。ホテルライクな一体型の洗面室など、男のこだわりを随所に盛り込んだ空間へと生まれ変わりました。

お客様の声
大好きなBARのような雰囲気の中でお酒を楽しんでいます。
担当者の声
正木 宏二

M様のような男のこだわりの空間づくりをカタチに。お客様が叶えたいライフスタイルをサポートします。
ビフォーアフター
ビフォー

アフター

3室をワンルームにして広々としたLDKに。こだわりはBARのようなカウンターキッチン。

ビフォー

アフター

施工店情報
パナソニックリフォームクラブ
リファイン守山 株式会社東和不動産
(旧:リファイン守山)

〒524-0022
住所:滋賀県守山市守山3丁目2番33号
電話:077-582-8881 FAX:077-582-0030

■運営会社名 株式会社東和不動産
■建設業 滋賀県知事許可(特-4)第21814号
■建築士事務所 一級建築士事務所:滋賀県知事登録(二)第2038号

このお店の情報・事例を見る
リファイン守山 株式会社東和不動産(旧:リファイン守山)のリフォーム事例一覧
このお店の他の事例を見る
ページの先頭へ