| 建物種別 | 戸建て |
|---|---|
| 改修規模 | 建替え |
| 築年数 | 築50年 |
| 総工事面積 | 約139m2 |
| 施工期間 | 約120日 |
| 総工事費 | 約3450万円 |
| 地域 | 奈良県 |
| 家族構成 | 夫婦+子供2人 |
| テーマ | 団らんキッチン、古民家再生、自然素材、広々、その他 |
和室の引戸を開放すると、LDKと一体となった開放的な空間に。子どもたちものびのび動き回れます。
玄関を入ると、アールの漆喰塗りが印象的な壁が目に入ります。壁の内側は、クローゼット。
陶器の手洗い器とウォールナットの木製カウンターを設置した落ち着きのあるトイレ空間。
2色に塗り分けたモダンな外観はご主人、グリーンと錆石の映えるロックガーデン風の庭は奥様のお気に入り。
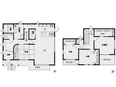
築50年の戸建を、安心して子育てができる開放的な住まいに建て替えたN様。室内は、キッチンから子どもたちの様子が見渡せ、水まわりも回遊式にするなど、奥様の希望である家事動線を優先した間取りに。一方、外観はチャコールブラック色のアンティークウッド仕上げ、室内は漆喰仕上げにするなど、ご夫婦好みの和モダンなテイストにこだわりました。

2色に塗り分けたモダンな外観はご主人、グリーンと錆石の映えるロックガーデン風の庭は奥様のお気に入り。
