| 建物種別 | 戸建て |
|---|---|
| 改修規模 | 改装・設備交換 |
| 築年数 | 築38年 |
| 総工事面積 | 約42m2 |
| 施工期間 | 約40日 |
| 総工事費 | 約432万円 |
| 地域 | 広島県 |
| 家族構成 | 夫婦 |
| テーマ | 団らんキッチン、明るい部屋、オール電化、その他 |
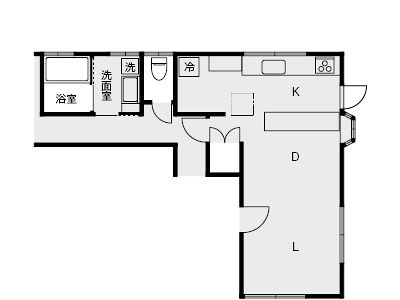
囲まれ感のあるL型からI型に変更されたキッチン。家電収納を備えているので収納の問題も解決。
息子さんからプレゼントされたカウンター式収納は、バツグンの収納力。「キッチンまわりがスッキリしました」と奥様。普段は夫婦の食卓として利用しています。
ソフトダウンウォールユニット採用の吊戸棚ならラクに取り出せます。
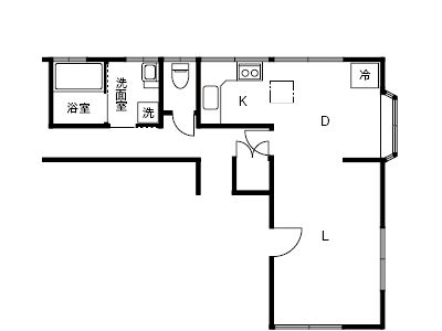
独立した息子さんがお孫さんを連れて遊びに来るようになり、キッチンや食卓が手狭に感じていたY様。木目調の内装で暗い印象なのも気になっていました。そこで、キッチンを奥まった西側から明るい東側に移動し、開放的なI型キッチンに変更。ダイニングとリビングの間の壁は取り払い、開放的なLDKが実現しました。「居心地がよくなり、息子たちが来る回数も増えました」と喜ばれています。

囲まれ感のあるL型からI型に変更されたキッチン。家電収納を備えているので収納の問題も解決。
