| 建物種別 | 戸建て |
|---|---|
| 改修規模 | 全面リフォーム |
| 築年数 | 築17年 |
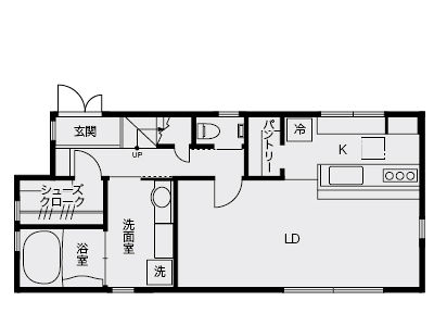
| 総工事面積 | 約50.62m2 |
| 施工期間 | 約70日 |
| 総工事費 | 約850万円 |
| 地域 | 神奈川県 |
| 家族構成 | 夫婦+子供2人 |
| テーマ | 団らんキッチン、ペット、広々、その他 |
みんなの笑顔が集まるリビングをもっとステキに快適に。
対面式でエリア分けした機能的なキッチン。つくり付けのカップボードは、食器類などもたっぷり収納できます。キッチン家電が全部収まり、動線もコンパクトに。「トリプルワイドIHでお料理の効率がぐんとアップしました」と奥様。
構造上、動かせない柱をうまく利用してパントリーに。欲しいものがすぐに取り出せ、デザインにもこだわりました。
カウンターの立ち上がりが目隠しになり、空間をすっきりと演出。青と白のタイルは奥様のセンス。清潔な印象に。
ご家族がほとんどの時間をリビングで一緒に過ごすというT様邸では、2匹のワンちゃんもその一員。リフォームをする際も、愛犬たちが滑らないよう床は凹凸のあるものを選び、リビングの一角にはタイル張りのひんやりエリアを設けました。お子さんがリビングでも勉強できるように、キッチンの対面壁前にはカウンターを設置。使われていなかった洋室を広げ、リビングをより快適な空間へとつくり替えました。

みんなの笑顔が集まるリビングをもっとステキに快適に。
