PanasonicリフォームClub
TOP TOPリフォーム事例検索詳細

石川県 K様邸

和を残し趣ある玄関
収納場所もたっぷり

お店の情報・お問い合わせ  このお店の他の事例を見る
データ
建物種別 戸建て
改修規模 全面リフォーム
築年数 築30年
施工期間 約150日
地域 石川県
家族構成 夫婦
テーマ 団らんキッチン、オール電化、その他
全国の「Panasonic リフォーム Club」のお店をさがす
リフォームポイント

玄関は、入り口を変え、和風の趣を残しつつ生まれ変わりました。
シュークローゼットとは別に物入れを設置し、収納に困らず快適に。

お客様の声
忙しい息子夫婦が暮らしやすい家ができて、とても満足しています。
担当者の声
山田 外志雄

物をあふれさせたくないというご希望を受け、食品と日用雑貨をまるごと収納できるパントリーや玄関ホールの壁面収納など、豊富な収納スペースを設けました。
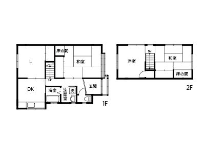
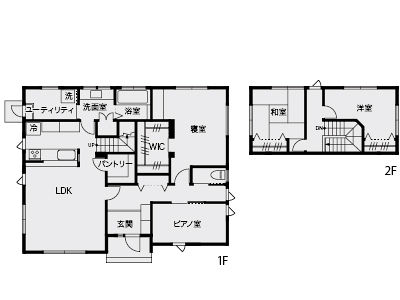
ビフォーアフター
ビフォー

アフター

このリフォームで採用したパナソニック商品
施工店情報
パナソニックリフォームクラブ
宏州建設株式会社
(旧:リファイン金沢駅西)

〒920-0025
住所:石川県金沢市駅西本町1丁目3番15号
電話:076-263-5355 FAX:076-263-5357

■運営会社名 宏州建設株式会社
■建設業 石川県知事許可(特-4)第3169号
■建築士事務所 一級建築士事務所:石川県知事登録第1967号

このお店の情報・事例を見る
宏州建設株式会社(旧:リファイン金沢駅西)のリフォーム事例一覧
このお店の他の事例を見る
ページの先頭へ