開口を高くとり、室内窓で仕切りました。
キッチンの中も明るく、ダイニングの人の気配を感じる緩く仕切った空間となりました。
正面とサイドに室内窓を設け、キッチンとダイニングを仕切りました。視線は抜けるので、閉鎖的にはならず、それでいて調理中の油の飛び跳ねやにおいをカットでき、料理にも集中できるセミクローズドな空間となりました。


対面キッチン腰壁付け。暗くて孤立した空間です。

開口を高くとり、室内窓で仕切りました。

キッチンの中も明るく、ダイニングの人の気配を感じる緩く仕切った空間となりました。
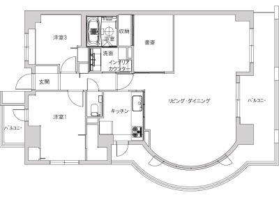
夫婦2人暮らしでは部屋数が多く、浴室の大きさも少し広く感じます。また、来客も多い為、リビングを広げたいと考えていました。

洋室2をリビングに取り込み、和室もコンパクトにまとめ書斎へと仕様変更しました。それにより、リビングを広くとることができました。また、そのほかの部分も家具に合わせた間取りの変更により、無駄な空間をなくし、すっきりと機能的な空間になっています