| 建物種別 | マンション |
|---|---|
| 改修規模 | 全面リフォーム |
| 築年数 | 築33年 |
| 総工事面積 | 約83m2 |
| 施工期間 | 約79日 |
| 総工事費 | 約912万円 |
| 地域 | 千葉県 |
| 家族構成 | 夫婦+子供2人 |
| テーマ | 団らんキッチン、明るい部屋、広々、その他 |
広くて使いやすい、洗面室にもすぐ行ける対面キッチン。
グリーンの壁紙がアクセント。優しいナチュラルな雰囲気が広がります。
ダイニングの学習カウンターは壁付けに。テレビを見えないようにしました。
扉を開け放てば、風が爽やかに通り抜け動線もスムーズに。ママが動きやすく、風が通る回遊動線。
ご兄弟の部屋の勉強スペースは腰壁を立てて集中できるように。
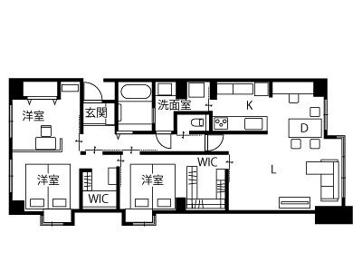
中古マンションを購入しリフォームされたH様。まだまだ目が離せない小学生のご兄弟がいることもあり、ダイニングには学習カウンターを設置し、和室をリビングに取り込んで遊べるスペースを広げ、それらを見渡せるように対面キッチンにしました。
以前の住まいでは家族一緒に就寝していましたが、子供部屋をつくり子どもたちだけで寝られるようにしました。寂しくなっても、全ての部屋を引き戸でつなげたので、主寝室の壁の扉を開ければウォークインクローゼットを挟みながらも、パパとママの気配を感じられます。
また、海に近く湿気がこもりやすいので、引き戸をすべて開け放ち、窓を開ければ風が住まい中を通り空気を入れ替えられます。回遊動線もでき、キッチンにいながら子供部屋にいるご兄弟の気配が感じられ、離れていてもつながる、親も子も安心して過ごせる間取りとなりました。


広くて使いやすい、洗面室にもすぐ行ける対面キッチン。
