| 建物種別 | 戸建て |
|---|---|
| 改修規模 | 全面リフォーム |
| 築年数 | 築39年 |
| 総工事面積 | 約124m2 |
| 施工期間 | 約65日 |
| 総工事費 | 約1160万円 |
| 地域 | 愛知県 |
| 家族構成 | 夫婦+ご両親+お子様 |
| テーマ | 二世帯、バリアフリー、明るい部屋、広々 |
縦方向のⅠ型へ変更しました。
移動もスムーズになり、新鮮な気持ちで家事を行えるようにしました。
物置部屋となっていた洋室と廊下を無くし広々としたリビングダイニングに。大容量の壁面クローゼットを設置。見せる収納でスッキリ&オシャレ感がUPしました。
キッチン奥にシンプルな造りのパントリーを設けました。
サッシ部分を塞がないような設計にしました。換気もバッチリです。
間取りを変更したことで浴室に新たに大きな窓を設置し、外から光が入る明るい浴室になりました。
洗面台をフロートタイプに。コンパクトスマートに収納♪
デザイン&水撥ね対策にスマートモザイクシートを貼りました。
アクセントにボタニカル柄クロスを貼り、華やかな空間になりました。
間取りを変更し、窓換気が取れるようになりました。
広くなって、背面に収納が確保できました。
天井までの大容量の玄関収納を造作しました。家族全員分の靴はもちろん、集めたキャンプグッズもしっかり納まりました。
窓は塞がない様に設計し換気も出来、置台としても活用できるようにしました。
分電盤もこの中に収められており、スッキリしたデザインの玄関となりました。
ホワイト×ブルーのツートンカラーに塗り替え、清々しい印象へガラリと変わりました。
屋上ベランダの防水、ブロック塀のやり替えも施工しました。
「水廻りの設備がだいぶ古くなってきた。」「収納が少なく部屋が物であふれている。」「部屋が寒い。」とのことでご相談を頂きました。
キッチンの向きを変えて新鮮な気持ちで家事を行えるようにしました。
物置部屋となっていた洋室と廊下をなくし、広いLDKにパントリーや収納を確保しました。
LDKの南側にある掃出し窓をペアガラスの窓へと取り替えました。


以前はL字に区切られたキッチンでした。
長年使っていたL字のキッチンから見る風景にマンネリ化をしていたのでせっかく工事するなら向きを変えたいと、若奥様のご希望によりプラン提案を繰り返し、ご納得頂ける間取りにたどり着きました。

縦方向のⅠ型へ変更しました。
移動もスムーズになり、新鮮な気持ちで家事を行えるようにしました。

物置部屋となっていた洋室と廊下を無くし広々としたリビングダイニングに。大容量の壁面クローゼットを設置。見せる収納でスッキリ&オシャレ感がUPしました。

キッチン奥にシンプルな造りのパントリーを設けました。

サッシ部分を塞がないような設計にしました。換気もバッチリです。
以前は寒さを感じる浴室でした。また、子供と一緒に入るにはちょっと手狭なサイズ感でした。

間取りを変更したことで浴室に新たに大きな窓を設置し、外から光が入る明るい浴室になりました。
北側に面している洋間は荷物で埋まってしまい生活空間が狭まっていました。
お風呂は子供と一緒に入るにはちょっと手狭なサイズ感で、トイレは階段下のスペースにある為窮屈でした。

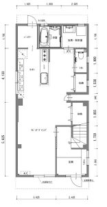
間取りを大幅変更しました。
荷物で埋まっていた洋室箇所に浴室・洗面脱衣室を配置し、水廻りスペースを広く確保しました。
キッチンはせっかく工事するなら眺めを変えたいと、若奥様のご希望によりプラン提案を繰り返し、ご納得頂ける間取りにたどり着きました。