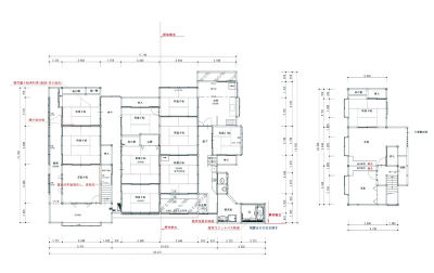
| 建物種別 | 戸建て |
|---|---|
| 改修規模 | 全面リフォーム |
| 築年数 | 築50年 |
| 総工事面積 | 約170m2 |
| 施工期間 | 約120日 |
| 総工事費 | 約2500万円 |
| 地域 | 富山県 |
| テーマ | 二世帯、バリアフリー、介護、明るい部屋、団らんキッチン |
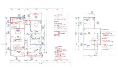
改装後は I 型の対面キッチンにしました。LD側の様子やTVを見ながら作業出来ます。
キッチンの背面には収納を設置。食器棚を置かず、「隠す収納」で食器やストック用品、日用品etc...、
家族の誰もが把握できる収納へ。
単独の居間を1つのLDKにしました。薄暗かった居間が明るいLDKになりました。
抜けない柱の間にちょっとしたスペースを。化粧スペースやパソコンスペースにおススメです。
改装後は将来的に介護ができるくらいのスペースを確保しました。
将来的に介護のことも踏まえ出入口幅が大きい1.25坪の浴室へ。
洗面脱衣室には簡易冷暖房付き。入浴時のヒートショックの予防にも優れています。脱衣室には、
室内物干しスペースを設置。雨の日にも洗濯物が干せます。
・ 夏「涼しく」、冬「暖かい」お家にしたい!
・ 将来を見据えてバリアフリーにしたい!
・ 離れていたキッチン・お風呂・トイレをまとめて家事動線をよくしたい!というお悩み・ご要望でしたのでこちらをふまえてのリフォーム提案させていただきました。


キッチンは壁に向かった I 型キッチンでした。設備の老朽化もあり収納力をアップさせたいと思いました。

改装後は I 型の対面キッチンにしました。LD側の様子やTVを見ながら作業出来ます。


キッチンの背面には収納を設置。食器棚を置かず、「隠す収納」で食器やストック用品、日用品etc...、
家族の誰もが把握できる収納へ。
昔ながらの和室の居間。将来を見据えて椅子式のリビングにしたい。

単独の居間を1つのLDKにしました。薄暗かった居間が明るいLDKになりました。
