PanasonicリフォームClub
TOP TOPリフォーム事例検索詳細

愛知県 J様邸

家族が集うあたたかい家

  • 物件全体
  • キッチン・ダイニング・リビング
リフォームポイント

築50年になるお住まい。娘様ご家族との同居を機に、耐震リフォームをご決断。
家の中心であるLDKは家族みんなが集まる空間を目指しました。

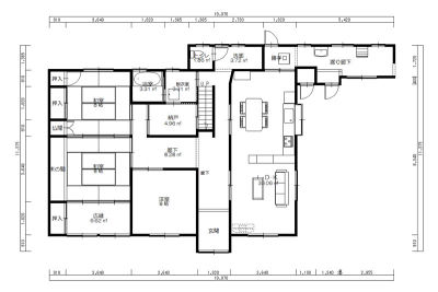
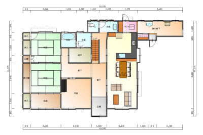
ビフォーアフター
ビフォー

4世代7人家族が集まるにはダイニングスペースが狭く、一緒に食事が出来なくなることが予想されました。

アフター

キッチン空間とリビングダイニング空間を分け、どちらも十分な広さになるように造り変えました。

ビフォー

アフター

食事をしながら家族で会話を楽しむ理想の空間になりました。

ビフォー

キッチン収納が目隠しの役割をしており、料理中は孤立感がありました。

アフター

吊り戸はなくし家族が見渡せるようにしました。L型の作業スペースは広々使え、4世代一緒に料理が楽しめます。

ビフォー

アフター

施工店情報
パナソニックリフォームクラブ
シンセイ建設株式会社
(旧:リファインおおぶ)

〒474-0061
住所:愛知県大府市共和町5-47
電話:0562-44-7055 FAX:0562-46-5293

■運営会社名 シンセイ建設株式会社
■建設業 愛知県知事許可(特-7)第43294号
■建築士事務所 一級建築士事務所:愛知県知事登録(い-4)第4881号

このお店の情報・事例を見る
シンセイ建設株式会社(旧:リファインおおぶ)のリフォーム事例一覧
このお店の他の事例を見る
ページの先頭へ