| 建物種別 | 戸建て |
|---|---|
| 改修規模 | 全面リフォーム |
| 築年数 | 築35年 |
| 総工事面積 | 約228m2 |
| 施工期間 | 約96日 |
| 総工事費 | 約2585万円 |
| 地域 | 群馬県 |
| 家族構成 | 母+夫婦+子供1人 |
| テーマ | 団らんキッチン、二世帯、その他 |
家族が集うリビングは、ナチュラルなフローリングでやわらかなイメージに。内窓を設置し、あたたかさだけでなく静音性も高めたことで、お子様ものびのびと楽しんでいます。
明るいランドリースペース。キッチンやパントリーと直線的に配置されたことで、家事動線がスムーズに。
木目を活かした洗面台と収納棚は、奥様のリクエストに応えたオリジナル。
木目を活かした洗面台と収納棚は、奥様のリクエストに応えたオリジナル。
ドア上にデザインされたあかり窓もアクセント。家族の気配を感じることもできます。
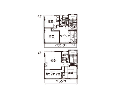
2階は、お母様専用フロアーとして、階段をプライベートエリアの外に設けるなど、しっかりとプライバシーを確保。
部屋の大きなクローゼットの中に愛用のタンスを収納する工夫にも大満足です。
お母様と一緒に暮らすためリフォームしたY様ご夫婦。お仕事と育児を両立する忙しい毎日の中で、家事がスムーズにでき、お子様が走り回っても安心な二世帯の住まいの新しいカタチとなりました。


家族が集うリビングは、ナチュラルなフローリングでやわらかなイメージに。内窓を設置し、あたたかさだけでなく静音性も高めたことで、お子様ものびのびと楽しんでいます。
