| 建物種別 | マンション |
|---|---|
| 改修規模 | 全面リフォーム |
| 築年数 | 築22年 |
| 地域 | 秋田県 |
| 家族構成 | 夫婦+子供1人 |
| テーマ | 団らんキッチン、明るい部屋、オール電化、その他 |
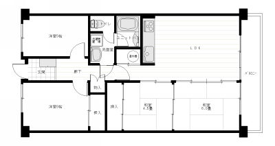
12帖のLDが17帖へ。大きな収納も設置。
採光のよい明るいリビングに。
家族構成・生活スタイルに合わせ、2間あった和室をなくしリビングを12.3帖から17帖へ。採光もよく気持ちの良いリビングに生まれ変わった。


和室をなくしリビングを広くしたい。

12帖のLDが17帖へ。大きな収納も設置。
下がり壁と建具によって採光が遮られ薄暗い。

採光のよい明るいリビングに。
間取か細切れで使い勝手が悪い
