PanasonicリフォームClub
TOP TOPリフォーム事例検索検索結果詳細

愛知県 Y様邸

明るい南側の和室

お店の情報・お問い合わせ  このお店の他の事例を見る
データ
建物種別 戸建て
改修規模 増改築
築年数 築26年
施工期間 約78日
地域 愛知県
テーマ バリアフリー、明るい部屋、広々、その他
全国の「Panasonic リフォーム Club」のお店をさがす
リフォームポイント

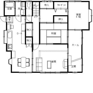
長年のご希望であった「明るい南側の和室」と「仏間」。
まずは南側に和室を配置することから考えました。
そのうえで、他の部屋の配置を考えると、現状のスペースのまま配置するよりも、
少しだけ増築した方がより住みやすくなると考え、仏間・床の間分の1.5帖を増築しました。

お客様の声
部屋や設備・家具の配置など、いろいろな提案を頂いた中で、この和室の1.5帖の増築案が、自分たちの願いに一番ぴったりくるものでした。おかげ様でずっと気になっていた仏壇もきちんと納まる、念願の明るい和室になり大満足です。
DKの取り外せない筋交いも、結果的にはいいアクセントになって気に入ってます。
ビフォーアフター
ビフォー

建物の真ん中に位置しており、陽が当たらず暗かった和室。

アフター

陽の当たる明るい和室。

ビフォー

アフター

このリフォームで採用したパナソニック商品
  • 内装ドア リビエ[終了品]
施工店情報
パナソニックリフォームクラブ
シンセイ建設株式会社
(旧:リファインおおぶ)

〒474-0061
住所:愛知県大府市共和町5-47
電話:0562-44-7055 FAX:0562-46-5293

■運営会社名 シンセイ建設株式会社
■建設業 愛知県知事許可(特-7)第43294号
■建築士事務所 一級建築士事務所:愛知県知事登録(い-4)第4881号

このお店の情報・事例を見る
シンセイ建設株式会社(旧:リファインおおぶ)のリフォーム事例一覧
このお店の他の事例を見る
ページの先頭へ