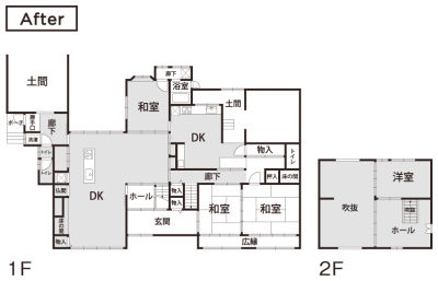
実家のご両親が安心して暮らせるようにとリフォームされたM様。襖によって細かく区切られていた和室部分を一体化し、開放的なLDKへと造り変えました。天井には吹き抜けを設けることで、対面キッチンによって生まれた空間の広がりをより感じられる造りに。断熱改修で冬でもあたたかく、フラットな廊下や段差部分のスロープなど、ご両親にとって暮らしやすい安心の住まいとなりました。
〒668-0027 住所:兵庫県豊岡市若松町6番35号 電話:0796-37-8901 FAX:0796-37-8902
■運営会社名 株式会社クレス ■建設業 兵庫県知事許可(特-3)第650958号 ■建築士事務所 一級建築士事務所:兵庫県知事登録第01A01754号