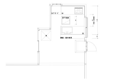
L型キッチンからⅡ型キッチンへ変更。カウンター付き収納を造作し、十分な収納を確保しました。
ダイニング側の吊度を無くし、開放感のあるキッチンへ変身。ご家族の顔を見ながら楽しく料理が出来ます。
床は無垢材を使用。ディープボルドーのキッチンとあわせることでよりシックな印象になりました。
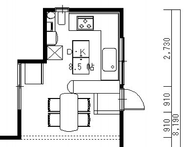
食洗機の故障をきっかけにDKリフォームをお考えになったK様ご夫婦。キッチンに立つのは基本的に奥様お一人で、料理中は孤立感がありました。そこで、手元も隠れ、なおかつ開放的なⅡ型のキッチンプランをご提案。奥様のお顔が見えることで、今まで以上にご家族とのコミュニケーションがとりやすくなりました。

L型キッチンからⅡ型キッチンへ変更。カウンター付き収納を造作し、十分な収納を確保しました。
吊戸付きの食器棚はキッチンを独立させていました。

ダイニング側の吊度を無くし、開放感のあるキッチンへ変身。ご家族の顔を見ながら楽しく料理が出来ます。

床は無垢材を使用。ディープボルドーのキッチンとあわせることでよりシックな印象になりました。

キッチンの空間を最大限生かすため、Ⅱ型キッチンを新設。冷蔵庫の位置や配膳の動線を意識し、お客様と打合せを重ねました。