PanasonicリフォームClub
TOP TOPリフォーム事例検索検索結果詳細

愛知県 K様邸

暮らしに寄り添う我が家らしい自慢のキッチン

お店の情報・お問い合わせ  このお店の他の事例を見る
データ
建物種別 戸建て
改修規模 改装・設備交換
施工期間 約20日
地域 愛知県
全国の「Panasonic リフォーム Club」のお店をさがす
リフォームポイント

食洗機の故障をきっかけにDKリフォームをお考えになったK様ご夫婦。キッチンに立つのは基本的に奥様お一人で、料理中は孤立感がありました。そこで、手元も隠れ、なおかつ開放的なⅡ型のキッチンプランをご提案。奥様のお顔が見えることで、今まで以上にご家族とのコミュニケーションがとりやすくなりました。

ビフォーアフター
ビフォー

アフター

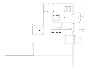
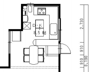
L型キッチンからⅡ型キッチンへ変更。カウンター付き収納を造作し、十分な収納を確保しました。

ビフォー

吊戸付きの食器棚はキッチンを独立させていました。

アフター

ダイニング側の吊度を無くし、開放感のあるキッチンへ変身。ご家族の顔を見ながら楽しく料理が出来ます。

ビフォー

アフター

床は無垢材を使用。ディープボルドーのキッチンとあわせることでよりシックな印象になりました。

ビフォー

アフター

キッチンの空間を最大限生かすため、Ⅱ型キッチンを新設。冷蔵庫の位置や配膳の動線を意識し、お客様と打合せを重ねました。

このリフォームで採用したパナソニック商品
施工店情報
パナソニックリフォームクラブ
シンセイ建設株式会社
(旧:リファインおおぶ)

〒474-0061
住所:愛知県大府市共和町5-47
電話:0562-44-7055 FAX:0562-46-5293

■運営会社名 シンセイ建設株式会社
■建設業 愛知県知事許可(特-7)第43294号
■建築士事務所 一級建築士事務所:愛知県知事登録(い-4)第4881号

このお店の情報・事例を見る
シンセイ建設株式会社(旧:リファインおおぶ)のリフォーム事例一覧
このお店の他の事例を見る
ページの先頭へ