PanasonicリフォームClub
TOP TOPリフォーム事例検索検索結果詳細

大阪府 N 様

分断された部屋から解放的な空間へ

お店の情報・お問い合わせ  このお店の他の事例を見る
データ
建物種別 戸建て
改修規模 全面リフォーム
築年数 築50年
工事面積 約36m2
施工期間 約300日
工事費 約1000万円
地域 大阪府
家族構成 世帯 人
テーマ 二世帯、バリアフリー、介護、明るい部屋、広々、その他
全国の「Panasonic リフォーム Club」のお店をさがす
リフォームポイント

2部屋を分断していた部屋を1部屋にすることにより解放的で広い空間をご提供することができました。

お客様の声
今までは暗いイメージの室内が、白を基調としたことで、明るく広い空間を作り出すことができました。
親世帯と子世帯・孫たちと生活リズムが異なる世代がそれぞれを尊重し、気兼ねなく暮らしていける動線が確立できました。
担当者の声
古賀 恵

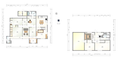
LDKと応接室の間に階段があることにより部屋を分断しておりました。
広い空間をご提案するには、LDKの真ん中に階段を設けるか、別の箇所に
新たに階段を設けるかということが一番の難関でした。
お孫様は年頃の女の子で、LDKの真ん中の階段を上がって2階に上がることは抵抗を感じられておりました、
階段を玄関前の和室に設置することとなりました。
ゆくゆくの介護を考えて、できる限りのバリアフリーといたしました。
建物が蔵・駐車小屋等の建物に囲まれているため、北側はほとんど光が差し込まない状況でしたので、白を基調としたインテリアでコーディネートいたしました。
ビフォーアフター
ビフォー

広いキッチンだけども物があふれている。6人掛けのテーブルを置くと身動きが取れない状況に。

アフター

LDKを広々と空間としました。
元階段部分の柱を生かして収納を設置。壁には間接照明付の飾り棚を設置

ビフォー

キッチンの反対に位置する元応接室。キッチンとの間の壁を取り払い階段を別の場所に移設すると広々とした空間が広がります。

アフター

LDKのクロスに変化を持たせることとしましたが、空間に広がりを出すため、間接照明付の壁を設置

ビフォー

LDKの間に立ちはだかる階段。
勾配もきつく、老夫婦はここ何年も2階に上がることが無いそうです。

アフター

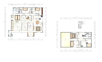
キッチンとリビングの間に可動棚を設けることで、必要な時に部屋を区切ることができます。

ビフォー

LDKの真ん中に階段があることにより小さな部屋に分断されてしまっております。

アフター

階段を玄関前に新設。
元階段の両脇の抜けない柱を利用して収納及び3枚引き込み扉の戸袋へ。

施工店情報
パナソニックリフォームクラブ
大和工業株式会社 大阪南支店
(旧:リファイン三日市)

〒586-0048
住所:大阪府河内長野市三日市町191-2
電話:0721-62-3350 FAX:0721-62-5119

■運営会社名 大和工業株式会社
■建設業 国土交通大臣許可(特-7)第23517号
■建築士事務所 一級建築士事務所:大阪府知事登録(へ)第18557号

このお店の情報・事例を見る
大和工業株式会社 大阪南支店(旧:リファイン三日市)のリフォーム事例一覧
このお店の他の事例を見る
ページの先頭へ