間仕切りを取り払いリビングに取り込みました。お手持ちの家具に似合うよう腰壁を木製装飾モールで見切りクロスの貼り分けをしています
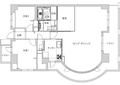
細分化されていた使わない個室を取り込み、リビングスペースを広げました。マンションの間取りによくあるリビング横の和室ですが、ご夫婦のライフスタイルに合わなかった為、書斎として仕様変更し、間仕切り位置もお手持ちの書棚に合わせました。結果としてコンパクトで機能的な書斎と、広々リビングが確保できました。


夫婦2人暮らしには部屋数が多く使い勝手が悪い間取りでした

間仕切りを取り払いリビングに取り込みました。お手持ちの家具に似合うよう腰壁を木製装飾モールで見切りクロスの貼り分けをしています
夫婦2人暮らしでは部屋数が多く、浴室の大きさも少し広く感じます。また、来客も多い為、リビングを広げたいと考えていました。

洋室2をリビングに取り込み、和室もコンパクトにまとめ書斎へと仕様変更しました。それにより、リビングを広くとることができました。また、そのほかの部分も家具に合わせた間取りの変更により、無駄な空間をなくし、すっきりと機能的な空間になっています