PanasonicリフォームClub
TOP TOPリフォーム事例検索検索結果詳細

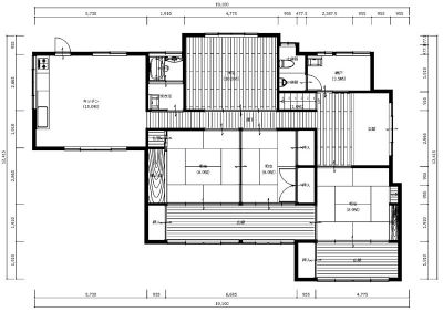
福岡県 E様邸

穏やかな面影を残す 新旧の素材が生み出すコントラスト

お店の情報・お問い合わせ  このお店の他の事例を見る
データ
建物種別 戸建て
改修規模 増改築
築年数 築55年
施工期間 約70日
地域 福岡県
家族構成 1世帯3人
テーマ 古民家再生、バリアフリー、オール電化
全国の「Panasonic リフォーム Club」のお店をさがす
お客様の声
初回現調の時から様々なご提案を頂き、プロの対応に感激したことを覚えています。間取りの変更の際はパースや、ラフ画などを使って話を進めてくれたのでイメージしやすかったです。リフォーム後初めての冬でしたが、この厳しい寒さの中、温かく皆が集まり、長居して賑やかに過ごす素敵な家になりました。 リビングに入って広がる現しの天井と大空間は、大変気に入っており我が家の自慢です。またこの古い家ならではの落ち着いた雰囲気に穏やかな時が流れてゆきます。家事動線は暮らしながら使いやすさを実感しています。ママ友達にも「すごくいい!」と好評です。本当に杜プラスさんにお願いしてよかったです。
担当者の声
・寒さ暑さに関しては、床壁天井の断熱材の充填。土間コンクリート打ち、内窓の設置、窓の取替(単窓→複層)水回りを全て取替。・部屋数を調整。LDKを広く取り、皆が自然と集まり、長居したくなる空間にするためにキッチンから全体が見渡せて、大きなソファーでゆったりテレビがみられるような配置にした。また、必要な位置に必要なものが置けるように収納を十分に確保。片付けやすくすっきりした空間を簡単に保つことが可能に。
・家事動線の簡略化し作業効率のアップを図った。奥様との綿密な打合せとシュミレーションを行い、物干し竿の位置や長さ、作業台の高さ、収納の仕方などE様だけの使いやすさを実現させた。
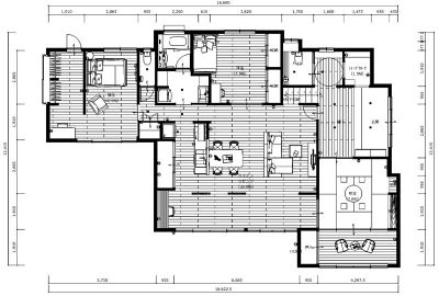
ビフォーアフター
ビフォー

南側の二間続きの和室

アフター

2階の床組が現しの天井
計画当初は2階の床組を見せる予定はありませんでしたが、解体時あまりにも素敵で趣のある床組が出てきたので、塞がずに現しのまま残すことをご提案しました。「みんなに褒めてもらえてうれしい。この天井がとてもお気に入りです」とE様。

ビフォー

アフター

キッチンは奥様の希望で対面式に。手元を立ち上げ、調理中の雑多さがリビングから見えないように配慮しました。近くに住むお孫ちゃんたちが遊びに来た際には、調理をしながら遊ぶ様子を見守ることが出来たり、配膳がスムーズにできたりメリットがいっぱいです。キッチンはPanasonicのラクシーナ「フードもIHも魚焼きグリルも全部お手入れが簡単で、ほんとうに家事が楽になりました」と奥様。

ビフォー

アフター

このリフォームで採用したパナソニック商品
施工店情報
パナソニックリフォームクラブ
杜プラス 株式会社協和木材
(旧:リファイン春日)

〒816-0874
住所:福岡県春日市大和町3丁目24番1
電話:092-515-1858 FAX:092-515-1859

■運営会社名 株式会社協和木材
■建設業 福岡県知事許可(般-6)第104656号
■建築士事務所 二級建築士事務所:福岡県知事登録第2-60388号

このお店の情報・事例を見る
杜プラス 株式会社協和木材(旧:リファイン春日)のリフォーム事例一覧
このお店の他の事例を見る
ページの先頭へ