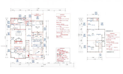
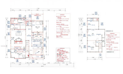
| 建物種別 | 戸建て |
|---|---|
| 改修規模 | 全面リフォーム |
| 築年数 | 築50年 |
| 工事面積 | 約170m2 |
| 施工期間 | 約120日 |
| 工事費 | 約2500万円 解体費他 |
| 地域 | 富山県 |
| テーマ | 二世帯、バリアフリー、介護、明るい部屋、団らんキッチン |
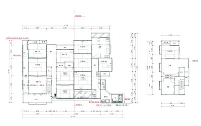
改装後は I 型の対面キッチンにしました。LD側の様子やTVを見ながら作業出来ます。
キッチンの背面には収納を設置。食器棚を置かず、「隠す収納」で食器やストック用品、日用品etc...、
家族の誰もが把握できる収納へ。
単独の居間を1つのLDKにしました。薄暗かった居間が明るいLDKになりました。
抜けない柱の間にちょっとしたスペースを。化粧スペースやパソコンスペースにおススメです。
・対面型のキッチン
・台所と居間の壁をなくし、大きな空間(LDK)にしました


キッチンは壁に向かった I 型キッチンでした。設備の老朽化もあり収納力をアップさせたいと思いました。

改装後は I 型の対面キッチンにしました。LD側の様子やTVを見ながら作業出来ます。


キッチンの背面には収納を設置。食器棚を置かず、「隠す収納」で食器やストック用品、日用品etc...、
家族の誰もが把握できる収納へ。
昔ながらの和室の居間。将来を見据えて椅子式のリビングにしたい。

単独の居間を1つのLDKにしました。薄暗かった居間が明るいLDKになりました。
