| 建物種別 | 戸建て |
|---|---|
| 改修規模 | 改装・設備交換 |
| 築年数 | 築36年 |
| 工事面積 | 約44m2 |
| 施工期間 | 約110日 |
| 工事費 | 約527万円 |
| 地域 | 愛知県 |
| 家族構成 | ご夫婦+お子様 |
| テーマ | バリアフリー、広々、その他 |
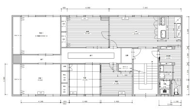
造作壁を取り払い、より開放感のあるキッチンになりました。ボルドーのキッチンをアクセントとした和モダンな空間にしました。
Panasonicラクシーナを採用。自動でお掃除のクリーンフード、三角よりも横一列で使いやすいトリプルワイドIHは空いた手前のスペースは材料の仮置きや盛り付けも出来て、作業効率もUP。
Panasonicスクリーンウォールを設置して、客間とLDKを間仕切りました。
スクリーンウォールを閉めた状態でも扉が付いているのでTPOに合わせた。お部屋づかいが可能になりました。
間仕切りにはウォールスクリーンを採用。普段は客間、壁際へ寄せればLDKとつながり大広間へ。年末年始、親戚一同で大宴会も◎
以前はすき間風が入り、建付けの悪い外窓でした。
外窓はペアガラス窓へ取り替えました。また、天井と一部の壁に断熱材を入れ、省エネ性能が向上しました。
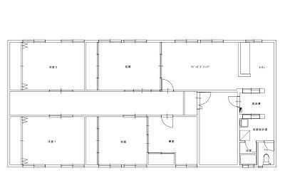
大きな間取変更はありませんが、年末年始に大人数で集まれるよう、スクリーンウォールを採用、洋室とLDKを1つの大空間へできるようにしました。
凝ったことはせず和の要素を入れつつシンプルにまとめたい。とのご希望もあり、ボルドーのキッチンをアクセントとした和モダンな空間にしました。



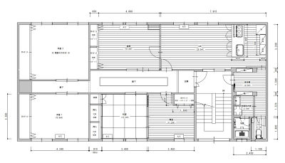
造作壁を取り払い、より開放感のあるキッチンになりました。ボルドーのキッチンをアクセントとした和モダンな空間にしました。

Panasonicラクシーナを採用。自動でお掃除のクリーンフード、三角よりも横一列で使いやすいトリプルワイドIHは空いた手前のスペースは材料の仮置きや盛り付けも出来て、作業効率もUP。

Panasonicスクリーンウォールを設置して、客間とLDKを間仕切りました。

スクリーンウォールを閉めた状態でも扉が付いているのでTPOに合わせた。お部屋づかいが可能になりました。

間仕切りにはウォールスクリーンを採用。普段は客間、壁際へ寄せればLDKとつながり大広間へ。年末年始、親戚一同で大宴会も◎
