PanasonicリフォームClub
TOP TOPリフォーム事例検索検索結果詳細

愛知県 N様邸

既設の部材を残したリメイクリフォーム

お店の情報・お問い合わせ  このお店の他の事例を見る
データ
建物種別 戸建て
改修規模 全面リフォーム
築年数 築55年
工事面積 約38m2
施工期間 約70日
工事費 約310万円
地域 愛知県
家族構成 お兄様+妹ご夫婦
テーマ 二世帯、バリアフリー、その他
全国の「Panasonic リフォーム Club」のお店をさがす
リフォームポイント

既設の部材を一部残したい。というご要望から棚板をリメイクして再利用しました。昔の面影を残したことで"懐かしさを感じられる"と喜んで頂けました。
ガラス障子はそのまま再利用しました。仏間・押入部分を新しい生活スタイルに合わせて割振りをやり替えました。
サンルームを減らして狭くなった分、和室を縮小し、リビングの広さを確保しました。間仕切建具を3枚引戸にすることで開放的な和室になりました

お客様の声
寒い、狭い、危なくて使えなかったお風呂が広くてあたたかなお風呂になって、とても満足しています。
所々に昔の名残があって懐かしい思い出と共に安心して暮らせる家になりとても嬉しいです。
担当者の声
大矢 浩司

お施主様がご高齢に近づいていることもあり、今回は家庭内事故に焦点を当てプラインニング致しました。
各所出来る限りバリアフリーとし、狭くて危険が多かったお風呂場はリフォムスを採用。トイレは停電時も簡単に使用できる様、L150をご提案させて頂きました。設備費用はその分上がってしまいますが、抑えられる所で節約し、安心して暮らして頂ける工事が出来たと思います。
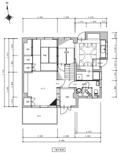
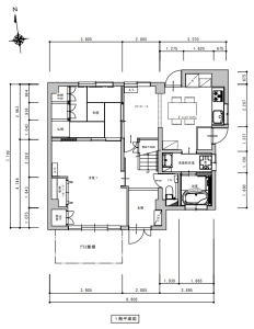
ビフォーアフター
ビフォー

アフター

サンルームを減らして狭くなった分、和室を縮小し、リビングの広さを確保しました。間仕切建具を3枚引戸にすることで開放的な和室になりました

ビフォー

アフター

ガラス障子はそのまま再利用しました。仏間・押入部分を新しい生活スタイルに合わせて割振りをやり替えました。

ビフォー

アフター

既設の部材を一部残したい。というご要望から棚板をリメイクして再利用しました。昔の面影を残したことで"懐かしさを感じられる"と喜んで頂けました。

ビフォー

アフター

フローリングをやり替え、ナチュラルカラーでまとめたリビングに。

ビフォー

アフター

サンルームをテラスに変え、開放的な窓まわりになりました。シャッターは耐風タイプなので台風がきても安心してお過ごし頂けます。

ビフォー

アフター

このリフォームで採用したパナソニック商品
施工店情報
パナソニックリフォームクラブ
矢野建設株式会社
(旧:リファインみなと)

〒455-0831
住所:愛知県名古屋市港区十一屋3丁目63番地
電話:052-384-2800 FAX:052-398-8451

■運営会社名 矢野建設株式会社
■建設業 国土交通大臣許可(特-5)第20106号
■建築士事務所 一級建築士事務所:愛知県知事登録(い-5)第4001号

このお店の情報・事例を見る
矢野建設株式会社(旧:リファインみなと)のリフォーム事例一覧
このお店の他の事例を見る
ページの先頭へ