| 建物種別 | 戸建て |
|---|---|
| 改修規模 | 全面リフォーム |
| 築年数 | 築35年 |
| 施工期間 | 約96日 |
| 地域 | 群馬県 |
| 家族構成 | 母+夫婦+子供1人 |
| テーマ | 団らんキッチン、二世帯、その他 |
家族が集うリビングは、ナチュラルなフローリングでやわらかなイメージに。内窓を設置し、あたたかさだけでなく静音性も高めたことで、お子様ものびのびと楽しんでいます。
明るいランドリースペース。キッチンやパントリーと直線的に配置されたことで、家事動線がスムーズに。
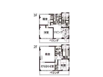
お母様と一緒に暮らすためリフォームしたY様ご夫婦。お仕事と育児を両立する忙しい毎日の中で、家事がスムーズにでき、お子様が走り回っても安心な二世帯の住まいの新しいカタチとなりました。


家族が集うリビングは、ナチュラルなフローリングでやわらかなイメージに。内窓を設置し、あたたかさだけでなく静音性も高めたことで、お子様ものびのびと楽しんでいます。
