| 建物種別 | マンション |
|---|---|
| 改修規模 | 全面リフォーム |
| 築年数 | 築26年 |
| 総工事面積 | 約76m2 |
| 施工期間 | 約60日 |
| 総工事費 | 約750万円 |
| 地域 | 千葉県 |
| テーマ | 自然素材、明るい部屋、広々、その他 |
暗くて狭かったマンションのキッチン。 奥様念願の対面キッチンになりました。
ご夫婦二人分の食器なら、キッチンフロアユニット + カップボードで十分
ということで、ウォールユニットはつけませんでした。
IHクッキングヒーターと食洗機をつけた対面キッチン。
リビングにいるご主人やお孫さんたちとの会話にも参加できるようになりました。
和室は残したいというご夫婦のために、和室を造りました。
子供や孫が泊まりにくる時の寝室になりますし、
普段はリビングの一部としてお使いいただけます。
夜の和室。他の部屋の建具と合わせて、造作障子を塗装しました。
和室の明かりが行燈のような温かさを演出します。
リビング横のご夫婦の寝室。
間仕切りは、和室の障子と合わせて、格子タイプの
スクリーンウォールにし、和風モダンな雰囲気に。
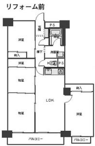
築30年近いマンションにお住まいのご夫婦。
ご主人の定年とお子様の独立を機に、郷里に帰ることもお考えでしたが、偶然立ち寄られた弊社の現場見学会で、「リフォームで新築同様になる」ことを実感され、リフォームを決断されました。
転勤続きだったご主人。これからは、奥様と二人で快適な住まいでゆったりした生活を楽しまれることでしょう。
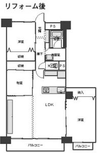
築30年近いマンション。
設備の老朽化ももちろんですが、部屋が細かく分かれていたので、子供の独立に合わせて、ゆったりした住まいにしたいというご希望でした。

