| 建物種別 | マンション |
|---|---|
| 改修規模 | 全面リフォーム |
| 築年数 | 築38年 |
| 総工事面積 | 約62m2 |
| 施工期間 | 約45日 |
| 総工事費 | 約700万円 |
| 地域 | 滋賀県 |
| 家族構成 | 1人 |
| テーマ | 広々 |
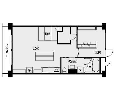
3室をワンルームにして広々としたLDKに。こだわりはBARのようなカウンターキッチン。
リビング横には、畳を敷いた仕事部屋が。リラックスしながらパソコン仕事ができます。
下駄箱は置かず、洋服や靴が1ヵ所に収納できる土間仕上げのウォークインクローゼットに。
インテリアへのこだわりがとても強いM様。ありふれた間取りやインテリアでは満足できないと中古マンションをスケルトン状態からリフォームすることに。キッチンは、BARのような雰囲気を演出するためモルタル仕上げのカウンター。玄関には、帰ってすぐ着替えられる大容量のウォークインクローゼットを。ホテルライクな一体型の洗面室など、男のこだわりを随所に盛り込んだ空間へと生まれ変わりました。


3室をワンルームにして広々としたLDKに。こだわりはBARのようなカウンターキッチン。
