| 建物種別 | マンション |
|---|---|
| 改修規模 | 全面リフォーム |
| 築年数 | 築10年 |
| 総工事面積 | 約85m2 |
| 施工期間 | 約60日 |
| 総工事費 | 約500万円 |
| 地域 | 大阪府 |
| 家族構成 | 夫婦 |
| テーマ | その他 |
間仕切りを取り払いリビングに取り込みました。お手持ちの家具に似合うよう腰壁を木製装飾モールで見切りクロスの貼り分けをしています
開口を高くとり、室内窓で仕切りました。
キッチンの中も明るく、ダイニングの人の気配を感じる緩く仕切った空間となりました。
・家具の寸法や夫婦2人住まいのサイズに合わせた間取りの変更。
・お手持ちのアンティーク家具の雰囲気に合わせた空間作り。


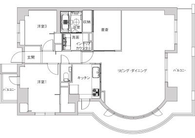
夫婦2人暮らしには部屋数が多く使い勝手が悪い間取りでした

間仕切りを取り払いリビングに取り込みました。お手持ちの家具に似合うよう腰壁を木製装飾モールで見切りクロスの貼り分けをしています
対面キッチン腰壁付け。暗くて孤立した空間です。

開口を高くとり、室内窓で仕切りました。

キッチンの中も明るく、ダイニングの人の気配を感じる緩く仕切った空間となりました。
夫婦2人暮らしでは部屋数が多く、浴室の大きさも少し広く感じます。また、来客も多い為、リビングを広げたいと考えていました。

洋室2をリビングに取り込み、和室もコンパクトにまとめ書斎へと仕様変更しました。それにより、リビングを広くとることができました。また、そのほかの部分も家具に合わせた間取りの変更により、無駄な空間をなくし、すっきりと機能的な空間になっています